网站首页
关于乐鱼(中国)
产品世界
新闻资讯
工程案例
售后服务
全国网点
乐鱼(中国)
合格证真伪查询
产品中心
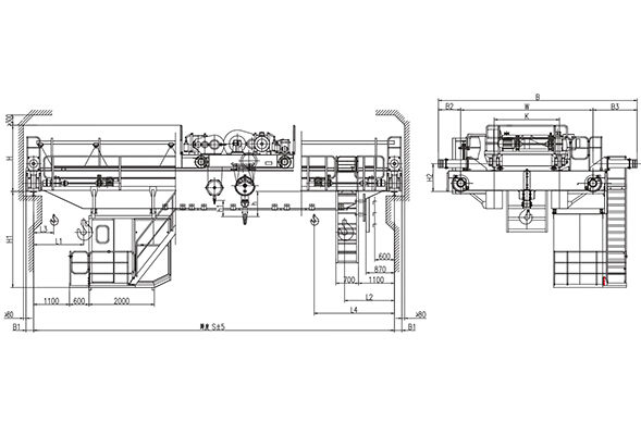
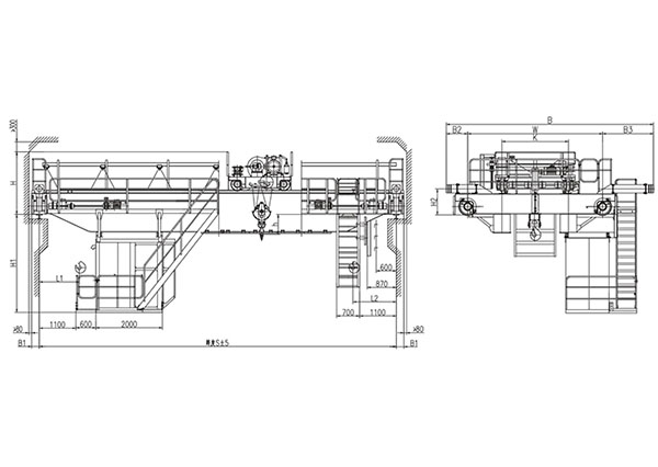
QD型125、32t~160、32t…
QD型125、32t吊钩…
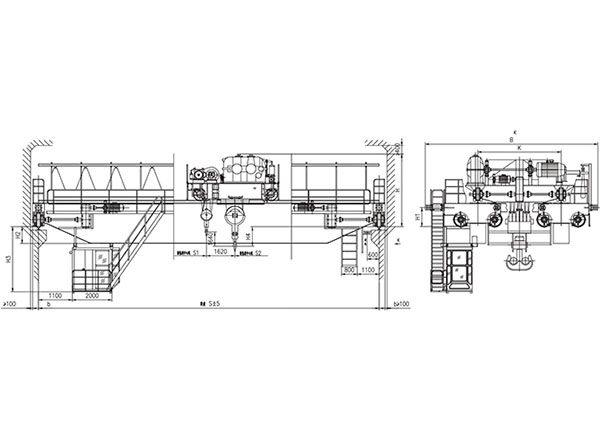
QD型200、50t~250、50t…
QD型500、100~550、100…
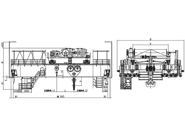
QD型600、150~800、150…
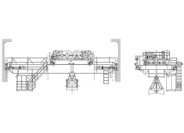
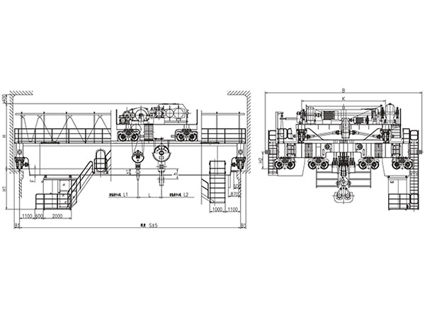
QZ型5~10t抓斗桥…
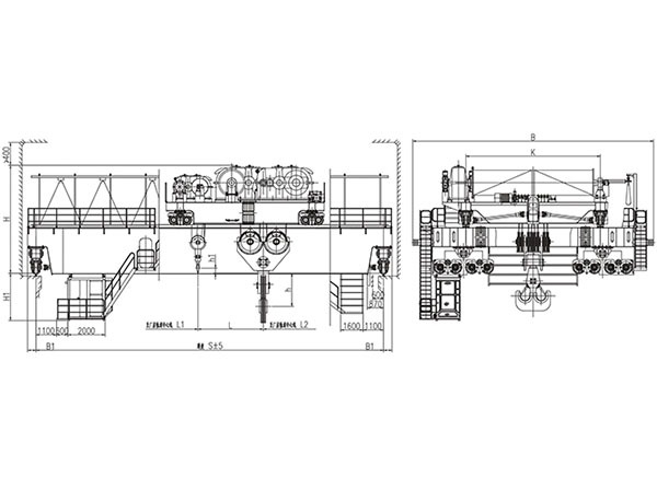
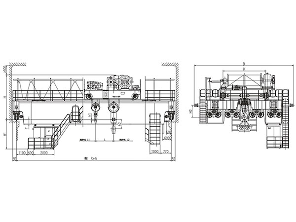
QZ型5~20t抓斗桥式起重…
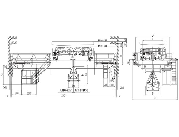
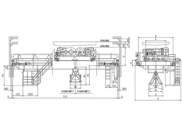
QZ型16~20t抓斗桥式起重…
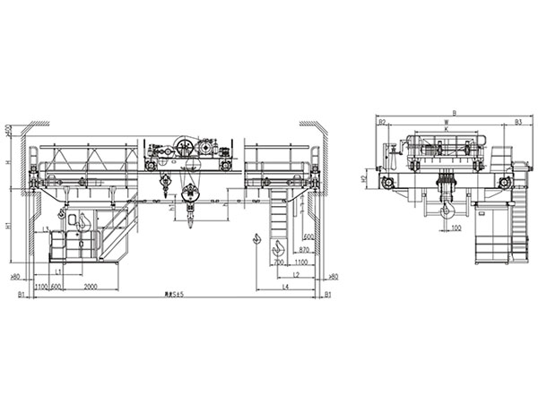
YZ型5~320t吊钩桥式铸造…
QDY型5~10t冶金起重机
QDY型16、3.2~20、5t冶…
QDY型32、5~50、10t冶金…
总共 144 条记录 每页 12 条 共 12 页 当前第 5 页
首页
上一页
1
2
3
4
5
6
7
8
9
10
下一页
尾页
开云集团官网
|
在线买球(中国)唯一官方网站
|
星空体育入口_星空(中国)体育网
|
乐竞在线平台(中国)官网
|
安博官方网页版
|
九游体育(中国)官方网站
|
在线买世界杯平台_世界杯(中国)
|
乐动网
|
多宝登录平台
|