网站首页
关于乐鱼(中国)
产品世界
新闻资讯
工程案例
售后服务
全国网点
乐鱼(中国)
合格证真伪查询
资质荣誉
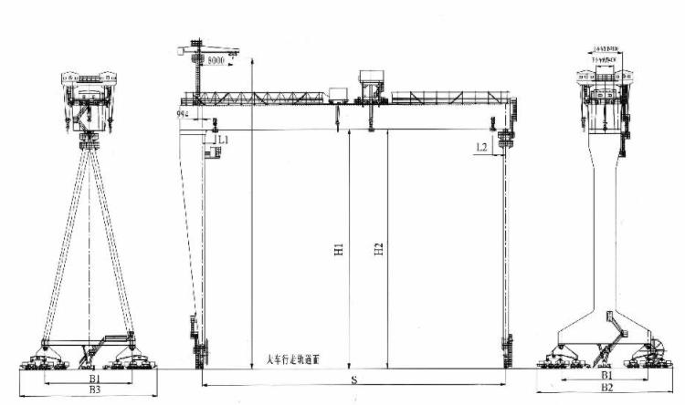
MU型造船门式起重机
架桥机
安全生产许可证
建筑业企业资质证书
职业健康安全管理体系认…
环境管理体系认证证书
质量管理体系认证证书
特种设备制造许可证
计量合格确认证书
荣誉证书
总共 10 条记录 每页 12 条 共 1 页 当前第 1 页
首页
上一页
1
下一页
尾页
开云集团官网
|
在线买球(中国)唯一官方网站
|
星空体育入口_星空(中国)体育网
|
乐竞在线平台(中国)官网
|
安博官方网页版
|
九游体育(中国)官方网站
|
在线买世界杯平台_世界杯(中国)
|
乐动网
|
多宝登录平台
|